Mobilheim Praia
3D Rundgänge
Denken Sie über den Kauf von einem Mobilheim nach? Heute bestellen, in wenigen Tagen einziehen.
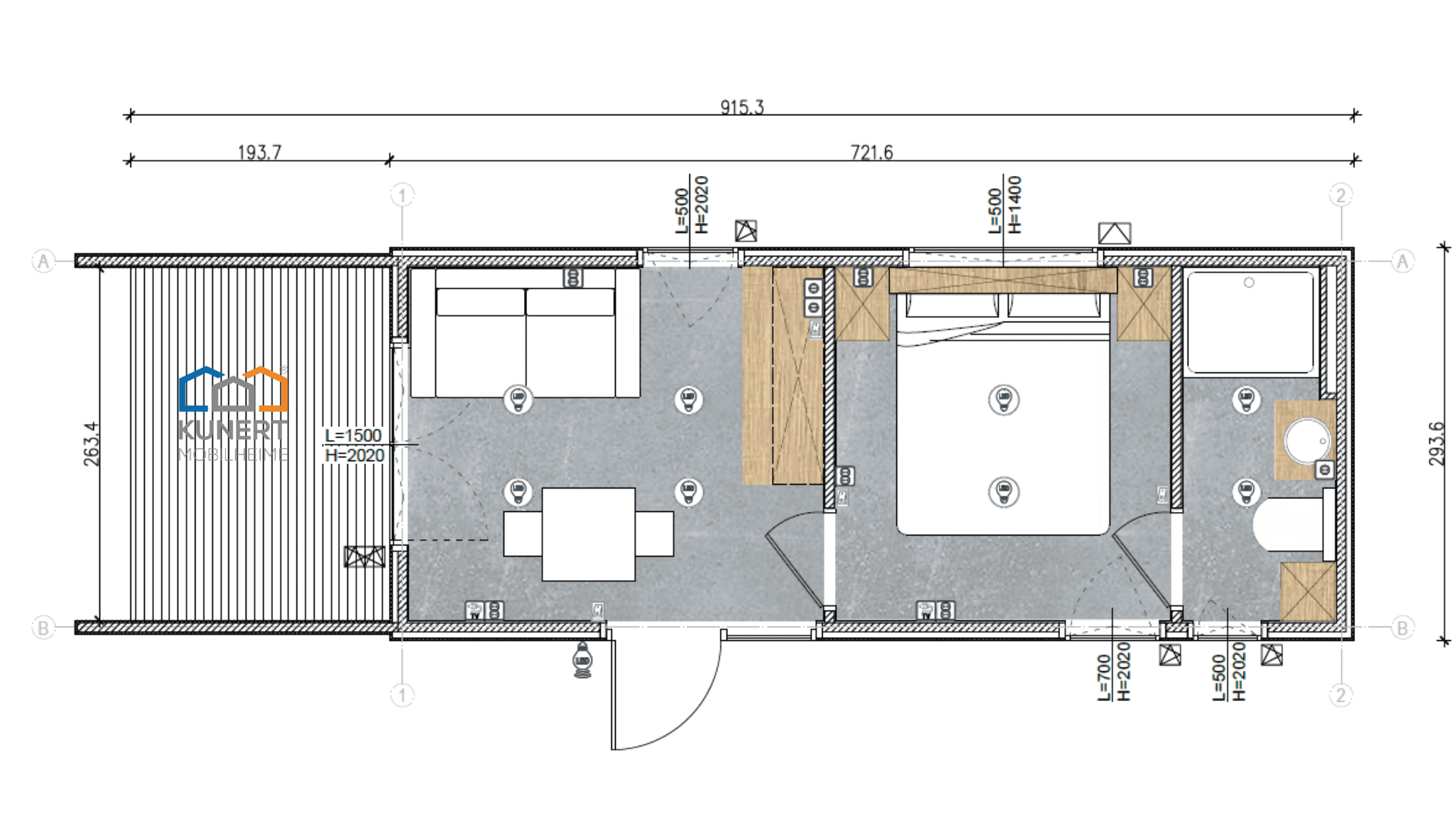
Grundriss
Anzahl der Schlafplätze
Anzahl der Badezimmer
Satteldach – symmetrisch
Satteldach – asymmetrisch
Pultdach
Flachdach
Gaskessel
Unterbaukühlschrank
Elektrischer Boiler
Gaskochfeld
Einbaukühlschrank
Elektrischer Kochherd
Backofen
Einbaugeschirrspüler eng 45 cm
Einbaugeschirrspüler groß 60 cm
Waschmaschine
Wäschetrockner
Unterschrank für Haushaltsgerät 45 cm
Unterschrank für Haushaltsgerät 60 cm
Mikrowelle
TV- Wandhalter
Klimaanlage: Außeneinheit
Elektrischer Kamin
Klimaanlage: Inneneinheit
Schrank mit Kleiderstange
Schrank mit Fächern
Kommode
Sofa mit Schlaffunktion
Etagenbett
Kleiderhaken
Spiegel
Zusätzliche Ausstattung
Rotes Symbol: zusätzliche Ausstattung
Blaues Symbol: Standardausstattung
Deckenbeleuchtung
Steckdose: 1- fach
Steckdose: 2- fach
Lichtschalter
TV Anschluss
Sicherungskasten
Luftöffnung
Elektroanschluss
Elektrischer Badezimmerventilator
Gasanschluss
Wasseranschluss
Abwasseranschluss
Fenster: Festverglasung
Fenster: Kippflügel
Fenster: Drehflügel
Fenster: Dreh- Kippflügel
Fenster: Schiebeflügel
Galerie
Galerie
Standard Ausstattung
Eingangstür 1525 x 2020 mm [KUU]
PVC Fenster Set mit Doppelverglasung in Anthrazitfarbe [WWX-UNS]
Sicherheitsglas in bodentiefen Fenstern [1JR]
Stromanschluss 400V mit Stecker [C4T]
Außensteckdose [PDV]
Außenbeleuchtung 1 Lichtpunkt [3XO]
Fassade Kerrafront Doppelplatte Classic (bis auf Quarzgrau) [KER]
EPDM Dachbahn [YXD]
Gardinenstangen, Vorhänge [UD5]
PVC Bodenbelag [9J2]
Bodenbelag, fest verklebt [8EY]
Elektroinstallation, komplett [K9W]
Sanitärinstallation, komplett [T9W]
Abwassersystem, komplett [7XQ]
LED Deckenbeleuchtung [Z63]
Innentür 600 mm, weiß, Metallrahmen [315]
Vorbereitung für Elektroheizung [OFU]
TV Anschluss mit elektrischer Steckdose [YBW]
Terrassen Schiebetür 1500 x 2020 mm [X75]
DK Terrassentür 700 x 2020, rechts, nach innen öffnend [MEZ]
Küchenmöbel [W8F]
Gehärtetes Glas hinter dem Herd, schwarz 550 x 450 [9CR]
Unterbaukühlschrank [SG3]
Elektroherd 2-er [6XZ]
Dunstabzugshaube – Unterbauhaube [KVX]
Spüle mit Abtropffläche und Hahn [YD3]
Bettkopfteil aus Holzplatte [1GH]
Nachttische, 2 Stk. [2UA]
Hängeregal über dem Bett [RA8]
Schrank mit Fächern [BZF]
DK Terrassentür 700 x 2020, rechts, nach innen öffnend [MEZ]
DK Fenster 500 x 1400, rechts, nach innen öffnend [AOT]
Duschkabine integriert 1000 x 800 mm [VVG]
Duscharmatur [KXB]
Waschbecken Rekord 400 x 310 [XXK]
Waschbeckenarmatur [5ME]
Waschbeckenunterschrank [NV9]
Schrank über dem Waschbecken [2W8]
Schrank für einen Bojler [OUC]
Spiegel im Hängeschrank über dem Waschbecken [KKZ]
Stand WC [ACA]
Elektrischer Ventilator [J2M]
Boiler 80l [M4E]
Handtuchheizkörper mit Heizelement [JVF]
DK Fenster 500 x 2020 mm [QEZ]
Fahrgestell bemalt [3QF]
Terrasse aus Schichtholzplatte [8PC]
Dämmung, Mineralwolle [PV4]
– in Wänden 75 mm [XKN]
– im Dach 100 mm [EUW]
– im Boden 100 mm [ZSW]
Isolierung mit Allufox Folie im Dach [ETX]
Dampfsperre [Y3H]
Winddichtung [R6O]
Kontakt
Katarzyna Kacerovsky
Tel.: +49 173 904 63 73
E-mail: k.kacerovsky@rokamobilheime.de
Siegmund Weber
Tel.: +49 179 668 41 23
E-mail: s.weber@rokamobilheime.de
Vilma Kadlcikova
Tel.: +420 776 241 844
E-mail: v.kadlcikova@rokamobilheime.de
Benjamin Ulrich
Tel.: +49 173 385 69 00
E-mail: b.ulrich@rokamobilheime.de
Holger Millemann
Tel.: +49 177 369 84 90
E-mail: h.millemann@rokamobilheime.de
Palle Davidsen
Tel.: +45 2175 40754
E-mail: p.davidsen@rokamobilheime.de
Kontakt
Katarzyna Kacerovsky
Tel.: +49 173 904 63 73
E-mail: k.kacerovsky@rokamobilheime.de
Siegmund Weber
Tel.: +49 179 668 41 23
E-mail: s.weber@rokamobilheime.de
Benjamin Ulrich
Tel.: +49 173 385 69 00
E-mail: b.ulrich@rokamobilheime.de
Holger Millemann
Tel.: +49 177 369 84 90
E-mail: h.millemann@rokamobilheime.de
Vilma Kadlcikova
Tel.: +420 776 241 844
E-mail: v.kadlcikova@rokamobilheime.de
Palle Davidsen
Tel.: +45 2175 40754
E-mail: p.davidsen@rokamobilheime.de
FAQs
In der Tat stimmt das auch. Den Unterschied macht allein die Bezeichnung: ähnlich. Oft sehen Mobilheime ähnlich aus. Es gibt aber gewisse Details, die man von außen nicht sieht, die aber den Preis beeinflussen und die für den Nutzer sehr wichtig sind: Konstruktionselemente, Dämmung, Belüftung usw. Davon hängt Ihre Sicherheit und Zufriedenheit mit dem Produkt ab.
Was unterscheidet noch ROKA Mobilheime von anderen Mobilheimen auf dem Markt?
ROKA Mobilheime sollen mindestens 30 Jahre Nutzungsmöglichkeit gewehrleisten. Allein aus diesem Grund bemühen wir uns Ihnen ein wirklich gutes Produkt anzubieten. Deswegen arbeiten wir mit guten Baumaterialien. Zusätzlich läuft die Produktion so ab, dass wir die Produktionskapazität jederzeit steigern können. Mehr Kunden können ihre Mobilheime termingemäß erhalten. Oder die Wartezeit lässt sich noch verkürzen.
Genehmigungsfreies Aufstellen ist nicht immer und nicht überall möglich.
Manchmal spielt hier die Größe bzw. Wohnfläche eine Rolle – bis zu 40qm ist ein Mobilheim genehmigungsfrei.
Generell hat aber jeder Landeskreis eigene Verordnungen bezüglich der Mobilheime, deswegen ist es wichtig sich die Informationen bei den zuständigen Behörden zu holen und das noch bevor das Haus gekauft wird. Dabei ist es empfehlenswert zu fragen welche Unterlagen erforderlich sind.
Auf einem Campingplatz hilft immer der Campingplatzbetreiber. Auf dem eigenen Grundstück wird das Haus an die öffentliche Versorgung Strom, Wasser, Abwasser angeschlossen. Es ist zu empfehlen das Haus durch einen Handwerker, Elektriker anschließen zu lassen. Ein Gastechniker macht die Inbetriebnahme der Therme und überprüft die Anschlüsse an die Gasflasche oder den Gastank.
Wir empfehlen das Mobilheim stabil auf dem Fundament aufzustellen . Entweder Punkt – oder Streifenfundament sollten für stabile waagerechte Position gut sorgen. Die Grundrisse für die Vorbereitung, so wie auch Anschlusspläne bekommen Sie von uns. Der Platz soll nämlich angeschlossen werden – Strom, Wasser, Abwasser, Gasanschlüsse sind notwendig. So bekommen Sie fließendes Wasser unter der Dusche oder zum Spülen. Sie wohnen in dem Mobilheim mit gewissen Bequemlichkeiten.
Nach der Lieferung soll das Mobilheim angeschlossen und positioniert werden. Unser Team kann beim Aufstellen, Stützen und Positionieren behilflich sein. Sobald das Haus positioniert, angeschlossen wurde, ist es sofort beziehbar.
Wenn Sie einen Aufstellplatz auf dem Camping haben, hilft Ihnen der Campingplatzbetreiber weiter.
Der Hersteller bietet die Lieferungsmöglichkeit an. Mobilheime werden mit einem Tieflader / Schwerlasttransport angeliefert. Transportkosten berechnen wir individuell.
Wichtig sind immer die Bedingungen vor Ort, für das Ausladen – genügend Platz, freie Zufahrt für den Tieflader und Platz zum Rangieren nach dem Ausladen, fester Boden. Wenn das Mobilhaus sich nicht direkt am Grundstück ausladen lässt, gibt es noch die Möglichkeit das Haus mit dem Kran zu versetzen, soweit es dafür auch geeignete Bedingungen gibt. Notfalls kann man das Haus mit dem Traktor wenige Meter ziehen. Dafür sind die Räder gut geeignet. Mobilheime dürfen aber nicht wie Wohnwagen hinter dem PKW gezogen werden.
Die Anlieferung ins Ausland ist auch möglich.
Im Prinzip ja, wenn das Projekt aber aufwendig ist und es gerade viele Bestellungen gibt, suchen wir einen Weg den Kompromiss einzugehen. Unsere Modelle lassen sich in der Regel gut anpassen.
Ja, allerdings sind nur kleine Änderungen möglich, die Statik des Hauses darf nicht beeinträchtigt werden. Einfach „eine Wand herausnehmen und etwas vergrößern“ bedeutet einen größeren Eingriff und viel Arbeit für den Architekten, soweit es überhaupt möglich ist. Es gibt mehrere Modelle, es ist zu empfehlen unter den vorhandenen Vorschlägen besser etwas Passendes zu finden.
Unsere Mobilheime eignen sich für dauerhaftes Wohnen, winterfeste Modelle haben eine gute Isolierung und sind mit der Heizung ausgestattet – moderne Heizsysteme ermöglichen das Wohnen in dem Mobilheim auch in den kalten Monaten.
Sowohl der Boden als auch die Wände und das Dach sind isoliert. Unser Winterpaket lässt zusätzliche Dämmung einsetzen.
ROKA Mobilheime sollen mindestens 30 Jahre Nutzungsmöglichkeit gewehrleisten. Allein aus diesem Grund bemühen wir uns Ihnen ein wirklich gutes Produkt anzubieten. Deswegen arbeiten wir mit guten Baumaterialien. Zusätzlich läuft die Produktion so ab, dass wir die Produktionskapazität jederzeit steigern können. Mehr Kunden können ihre Mobilheime termingemäß erhalten. Oder die Wartezeit lässt sich noch verkürzen.











